La nueva capilla del Carmen es un objetivo irrenunciable. Un propósito que, tras las trabas o las dificultades, ve la luz en Ceuta, en la Almadraba.
Este lunes la biblioteca Adolfo Suárez ha acogido el acto público en el que se han dado a conocer las formas que dibujan al templo.
El proyecto, ideado por el arquitecto Juan Antón Pacheco, no solo se constituye como una oportunidad para recuperar ese lugar de culto castigado por diferentes patologías que acechan con su derrumbe.

Se concibe también como una excusa perfecta para añadir espacios complementarios que sirvan a los transeúntes de la zona.
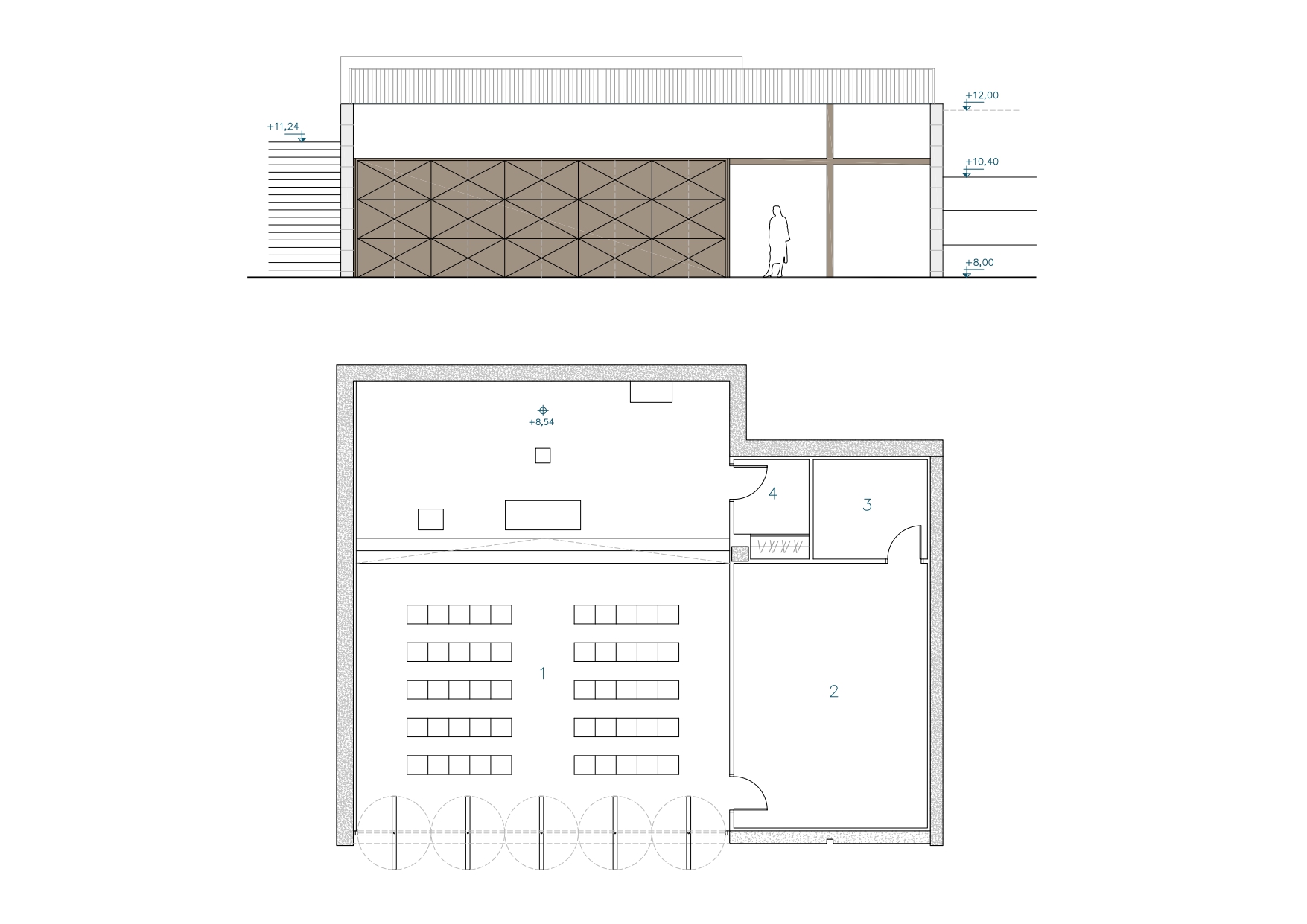
El modelo ideado alberga todo tipo de detalles, desde oficinas, salas para las catequesis, una estancia de usos múltiples o un almacén.
Un lugar para todos
La meta es que, al mismo tiempo que los feligreses cuentan con un lugar en el que desarrollar sus ritos, los ceutíes dispongan de un sitio en el que llevar a cabo actividades o en el que relajarse con visitas al mar.

"Siempre ha sido un objetivo irrenunciable. Ceuta es un pueblo con una larga tradición marinera y una fuerte devoción a la Virgen del Carmen", ha expresado Alejandro Ramírez, consejero de Urbanismo.
"El proyecto responde a la estrecha conexión espiritual y cultural con el mar", ha indicado. Asimismo, trata de corresponder a ese "vínculo especial" con la advocación mariana.
Simbolismo

La solución a la actual capilla, que está en un estado avanzado de deterioro, trata de cumplir con este propósito sin perder la vista hacia toda la carga de fe que aguarda.
"Es un espacio cargado de simbolismo que trasciende más allá de lo espiritual. Recuperará todo el entorno de una barriada marinera", ha destacado.
Sin embargo, llegar a estos seis meses de obra que darán paso a su materialización, no han estado exentos de dificultades.
"Ha tenido un recorrido bastante largo y difícil. Esto es un ejemplo más de la implicación de las administraciones. Han tenido algo que decir en todo este proceso", ha comentado.

"Sin ellas no habría sido imposible llegar al día de hoy, sobre todo, por entidades como la Delegación del Gobierno, Costas, el Invied o el obispado", ha recalcado.
Hitos
El consejero ha aclarado que, en el camino, se han dado dos hitos que lo han hecho viable. "Se decidió que el entorno debía estar cerca al mar. La parcela idónea para del Invied", ha explicado.
"El segundo ha sido el trámite urbanístico. Se requería de una excepcionalidad a la norma en este caso", ha subrayado. "Fue complejo poner en marcha la construcción de un templo a diez metros del mar. Gracias a que se comprendió que Ceuta tiene una serie de particularidades, fue posible".
No ha sido fácil llegar a este punto ni a este acto público. Antes ha habido algún que otro revés. Al igual que los obstáculos pueden cambiar a las personas, las trabas que han surgido en estos años también han trasformado la imagen de la capilla de la virgen del Carmen.
Aunque ya no será ese lugar de culto sencillo y blanco bordeado de naturaleza, conserva en su esencia la función de un templo. A este núcleo se suman espacios anexos que serán de provecho para toda la ciudadanía.
Primer boceto
Tras el primer boceto y sus posteriores modificaciones se encuentra la mente del arquitecto Juan Antón Pacheco, que desde primera hora se sumergió en esta pequeña iglesia a orillas del mar.
“El hecho de que se te dé la oportunidad de hacer un templo en tu ciudad con una entidad tan querida es un honor”, ha mencionado el artífice de la nueva capilla. “Llevo cinco años envuelto en este proyecto. Antes de hablar en sí del mismo, es interesante hacer un repaso por todo su recorrido”, ha agregado.
“Parece que ya al fin se llega a buen puerto y que se puede continuar con la iniciativa. Previamente hubo una etapa más desconocida”, ha expuesto. “Cuando me encargan la iniciativa, la recibo con ilusión. Visito la actual para ver cómo se desarrolla su espacio y ver su problemática”, ha explicado.
“Las mareas han lavado la cimentación, lo que supone un riesgo de colapso”, ha recordado. “Me empaparon de esa idiosincrasia de la comunidad. La recibí y traté de trasladarla a la propuesta”.
Sencilla y blanca
El aspecto que se dibujará cerca de la carretera de Martínez Catena no es el que en principio se ideó para la virgen del Carmen. La primera imagen que le surgió fue la de una capilla blanca, sin adornos y sencilla abrazada por el paisaje marino.
Guiado por ese pálpito y esa estética, salieron los primeros volúmenes con una torre, un campanario, una cruz y “una apertura para que la iglesia dialogue con el mar”. El arquitecto se estrena en este tipo de infraestructura.
“Nunca he hecho una iglesia”, ha admitido. “Creo que será la última” ha mencionado entre risas. “Se terminó, se entregó y tuvo el visto bueno de todos”. A pesar de que parecía que ya todo estaba hecho, pronto surgieron las barreras.
“Bofetada”
Todo el proyecto quedó recogido en documentos, unos papeles que, a ojos de Carreteras, no contenían los requisitos para una ejecución factible. “Con la iglesia topamos”, ha expresado Pacheco.
“No lo autorizaban. De repente, nos dieron esa bofetada de realidad”, ha comentado. Sin embargo, nadie tiró la toalla. La Ciudad y la Delegación del Gobierno se sentaron a la mesa para abordar el asunto.
Tras las conversaciones, emergieron dos opciones. O los feligreses y la talla sacra se buscaban su nuevo templo en otro punto urbano o cambiaban la propuesta para adaptarse al entorno y a las condiciones demandadas.
Pegado al mar
“Uno que no esté pegado al mar, no tiene sentido por todos los elementos vinculados a su gente, que es la que en su inicio la formó”, ha apuntado. Finalmente, se decantaron por mantener la localización y a ceñirse a las pautas.
A partir de ese momento, es cuando floreció esa intención de incorporar equipamientos en la zona. El lugar de culto en sí lo conforman materiales nobles y duraderos que resistan al impacto y la abrasión del agua.
Es por ello por lo que el hormigón y el acero son dos de sus componentes esenciales. “El proyecto comienza a concebirse como una capilla de la que le nace otro módulo semienterrado. Tiene dos miradores que permiten que todos puedan usarlos”, ha incidido.
Enseñanza
Tras explicar todos los pormenores de la fisionomía del futuro hogar de la virgen del Carmen, el vicario Francisco Fernández Alcedo ha pronunciado unas palabras cargadas de aliento y de enhorabuena.
“La devoción ha superado las medidas técnicas, los planteamientos e incluso la propia ley”, ha remarcado. “Cuando se plantearon todas las complejidades, nos movía algo y eso era la devoción”, ha relatado. “Nos moviliza el ser el testimonio de fe en un enclave único geográfico entre dos continentes”, ha detallado.
A pesar de la visible satisfacción con la iniciativa, no ha escondido que, al principio, no fue fácil aceptar las modificaciones. “Las circunstancias permiten esto”, ha señalado. Sin embargo, ha sido para él un aliciente para reflexionar. “¿Merece la pena sacrificar todo por una construcción que sea arquitectónicamente distinta?”.
Proyecto
La inversión asciende a 2,4 millones de euros y se prevé tener formalizado el proyecto el día uno de febrero. Contempla una segunda fase para erigir un embarcadero y para recobrar la playa.
La iniciativa no solo requiere de la construcción de los diferentes espacios. Incluye también actuaciones medioambientales para respetar el enclave natural en el que se inserta este templo. Tragsa es la empresa a cargo de esa labor.
“Se consigue dar un valor a un lugar donde no había nada prácticamente”, ha reseñado Ramírez. Uno de los elementos claves en este sentido es la implantación de una plaza pública “con mejores accesos”.






El arquitecto municipal que ha diseñado la capilla , es un diseño propio, o lo a sacado de un catálogo de tanatorios, pues es lo que parece........en fin , hasta en la fealdad, hay hasta cierta belleza aunque no se vea.
LA CAPILLA DEBE ESTAR AL PIE DEL MAR PARA DAR CULTO A LA VIRGEN CADA AÑO CUANDO SALE DEL PINEO A LA PROCESIÓN,SEA ENTERRADA O COMO HAGA FALTA.
NO QUEREMOS UNA CAPILLA LEJOS DE LA ORILLA POR MUCHO QUE LE GUSTE A LOS CAPILLITAS DE SIEMPRE.
ESTO ES LO QUE SE PODÍA HACER Y SE HA HECHO LO CORRECTO.ENHORABUENA
I
Al arquitecto municipal le tendrían que dar el premio nobel,no pega ni con cola,debería haberse optado por un diseño más marinero y clásico,no esto.
Ha matado dos pájaros de un tiro: una capilla laica y la rampa para embarcaciones
Un buen mirador para los que vigilan a la guardia civil, un buen merendero para los que dejan hecho un basurero el llano del chorrillo y un buen aliviadero de o meadero a mitad de la carretera nueva.
No hubiera sido más fácil una capilla como la que tenemos aún en pie.
Eso? eso ahí más vale que el temporal de levante lo reviente todo porque no va a durar y encima no pega nada el blanco en pocos meses será comido y agrietado por el salitre y los vientos de levante con esa modernización se han terminado de cargar el gusto de la virgen del Carmen ni siquiera va a durar eso ahí lo que más daño va a hacer son los temporales ahí en esa zona yo la verdad haría una capilla normal no tan moderna y encima a ras de la carretera para que para que cuando haya un movimiento de tierra se raje y venga abajo porque es lo que se va a conseguir
Una vez que se ha explicado todo,creo que se ha optado por la solución correcta.
La capilla debe estar junto al mar,aunque sea semienterrada,llevarla lejos de la playa y del Pineo hubiera sido un grandísimo error
Enhorabuena a todos los responsables